Spittelbau Immobilien GmbH
Tel.: +49 (0) 7422 / 949 67-0
E-Mail: info@spittel-bau.de
Internet: www.spittel-bau.de
 

Charmante, im Jahr 2022 neu ausgebaute, Wohnung in Tennenbronn: Ihre neue Kapitalanlage wartet!

Objektübersicht

Objektart   Etagenwohnung
Adresse   78144 Tennenbronn - Tennenbronn
Objektnummer   2953
Baujahr   2022
Zimmerzahl   3
Wohnfläche (ca.)   71,50 m²
Kaufpreis   130.000,- €
Hausgeld (ca.)   200,- €
Anzahl Etagen   3
Energieausweis   Bedarfsausweis
Endenergiebedarf   118,17 kWh / (m²*a)
Energieausweis Ausstelldatum   02.02.2021
Energieausweis gültig bis   01.02.2031
Energieausweis Jahrgang   ab dem 1.5.2014
Energieausweis Wärmewert   118.17 kWh / (m²*a)
Energieausweis Werteklasse   D
Energieausweis Baujahr   1902
Energieausweis Gebäudeart   Wohngebäude
Anzahl der Einheiten   3
Objekt ist vermietet   ja
Küche   Einbauküche
Bodenbelag   Fliesen
Heizung   Zentralheizung
Wasch- / Trockenraum   ja
Ausstattung   STANDARD
Abstellraum   ja
Rollladen   ja
Gäste-WC   ja
Mieteinnahmen p.a. (IST)   7.200,- €
Zustand   teil / vollrenoviert
bezugsfrei ab   sofort
Provision für Käufer   3.0 %
Provision für Verkäufer   3.0 %

Objektbeschreibung

Diese attraktive und gut vermietete Wohnung befindet sich in einem Mehrfamilienhaus, das im Jahr 1902 erbaut und mehrfach um- und ausgebaut wurde.
Im Jahr 2022 wurde das ehemalige Ladengeschäft um? und ausgebaut und so diese schöne Wohnung auf Neubau-Standard geschaffen. Sie verfügt über ein eigenes Grundbuch.
Mit einer großzügigen Wohnfläche von 71,5 m² bietet die Wohnung ausreichend Platz für Singles, Paare oder kleine Familien. Die Wohnung erstreckt sich über drei Zimmer, die sich ideal für eine individuelle Nutzung gestalten lassen.
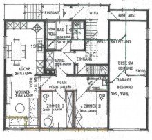
Wir betreten die Wohnung über den schönen Garderobenbereich. Rechts gelangen Sie in das Badezimmer. Das Bad verfügt über eine Dusche und Waschbecken. Den Waschmaschinenanschluss finden Sie ebenfalls hier.
Das lichtdurchflutete Wohnzimmer bildet den zentralen Punkt der Wohnung und lädt zu entspannten Stunden mit Freunden und Familie ein. Die angrenzende, offene Küche ermöglicht ein kommunikatives Kochen und gesellige Abende. Die beiden Schlafzimmer bieten Rückzugsmöglichkeiten und können nach persönlichen Vorlieben gestaltet werden.

Die Kaltmiete beträgt: 600,00? monatlich/ 7.200,00? jährlich

Ausstattung

-offener Wohnbereich an die Küche angrenzend
-Küche mit Einbauküche
-Schlafzimmer
-weiteres Zimmer
-Bad mit Dusche und Waschmaschinenanschluss
-sep. WC
-Kellerraum

Lage

Der Luftkurort Tennenbronn liegt mit seinen 3500 Einwohnern auf einer Höhe von 460 - 930 Meter über dem Meeresspiegel. Tennenbronn hat sich die Strukturen eines idyllischen Schwarzwalddorfes erhalten, in welchem sich die Menschen in Vereinen engagieren und eine lebendige Gemeinschaft, Gastfreundschaft, Tradition und Brauchtum intensiv gepflegt werden. Das kulturelle Leben wird bestimmt durch die zahlreichen Veranstaltungen der über vierzig aktiven Vereine. Sei es an der Fasnet, wenn die Narren durch den Ort ziehen oder bei einem der legendären Waldfeste, bei denen alte Bräuche und Handwerkstechniken vorgeführt werden. Die Region um Tennenbronn ist auch ein ideales Revier für Wanderungen, Nordic-Walking und Mountainbike-Ausflüge. Im Winter werden Loipen von 3 bis 19 Kilometern Länge gespurt, ein Rodelhang bringt für Groß und Klein jede Menge Spaß und die ersten Schwünge auf Ski oder Snowboard lassen sich am kleinen Skilift bestens üben. Diese helle Wohnung liegt in schöner, sehr idyllischer Lage von Tennenbronn. Wohnen Sie da, wo andere Urlaub machen!

Sonstiges

Energieausweis: Bedarfsausweis gültig von: 02.02.2021
Endenergiebedarf Wärme: 118.17 kWh/(m²a)
Wesentliche Energieträger Heizung: Befeuerung Pelletheizung
Energieeffizienzklasse: D
Baujahr: 1902

Beim Kauf der nachfolgend angebotenen
Immobilie beträgt der monatliche Aufwand 529,36 ?

bei einem Kaufpreis von 130.000,00 ?
+ Notar u. Gerichtskosten 1.950,00 ?

+ Grunderwerbsteuer 6.500,00 ?
+ Maklerprovision 3.900,00 ?
+ sonstige Kosten 0,00 ?

Gesamtkosten 142.350,00 ?

- 15,00% Eigenkapital 21.352,50 ?

Fremdmittelbedarf 120.997,50 ?

bei einem Zinssatz von 3,5% (effektiver Jahreszins gemäß PangV 3,56 % ) und 1,75% Tilgung und bei einer Zinsfest-schreibung auf 10 Jahre.

Bei dieser Berechnung sind Kosten, die eventuell für die Beschaffung der Finanzierung anfallen, nicht berücksich-tigt. Ebenso sind eventuelle staatliche Zuwendungen oder steuerliche Vergünstigungen nicht in diesem Vorschlag einbezogen.
Stand des Zinses: 13.10.2025

Kontaktinformation

Spittelbau Immobilien GmbH
Gewebepark H.A.U. 8

78713 Schramberg

Tel.: +49 (0) 7422 / 949 67-0
Fax: +49 (0) 7422 / 949 67-60
E-Mail: info@spittel-bau.de
Internet: www.spittel-bau.de

Ihr Ansprechpartner

Ansprechpartnerfoto Albert Feix

Albert Feix

Telefon: 07422-949670
Telefax: 07422-9496760
albert.feix@spittel-bau.de
Mo. - Fr. 8.00 Uhr - 12.00 Uhr / 14.00 Uhr - 17.00 Uhr

SpittelBau GmbH Charmante, im Jahr 2022 neu ausgebaute, Wohnung in Tennenbronn: 
Ihre neue Kapitalanlage wartet!
SpittelBau GmbH 
Wohnzimmer Charmante, im Jahr 2022 neu ausgebaute, Wohnung in Tennenbronn: 
Ihre neue Kapitalanlage wartet!
Wohnzimmer 
Außenansicht Charmante, im Jahr 2022 neu ausgebaute, Wohnung in Tennenbronn: 
Ihre neue Kapitalanlage wartet!
Außenansicht 
Küche Charmante, im Jahr 2022 neu ausgebaute, Wohnung in Tennenbronn: 
Ihre neue Kapitalanlage wartet!
Küche 
Wohnzimmer Charmante, im Jahr 2022 neu ausgebaute, Wohnung in Tennenbronn: 
Ihre neue Kapitalanlage wartet!
Wohnzimmer 
Schlafzimmer Charmante, im Jahr 2022 neu ausgebaute, Wohnung in Tennenbronn: 
Ihre neue Kapitalanlage wartet!
Schlafzimmer 
Garderobe Charmante, im Jahr 2022 neu ausgebaute, Wohnung in Tennenbronn: 
Ihre neue Kapitalanlage wartet!
Garderobe 
Außenansicht Charmante, im Jahr 2022 neu ausgebaute, Wohnung in Tennenbronn: 
Ihre neue Kapitalanlage wartet!
Außenansicht 
Grundriss Charmante, im Jahr 2022 neu ausgebaute, Wohnung in Tennenbronn: 
Ihre neue Kapitalanlage wartet!
Grundriss 
Schnitt Charmante, im Jahr 2022 neu ausgebaute, Wohnung in Tennenbronn: 
Ihre neue Kapitalanlage wartet!
Schnitt 
Lage Charmante, im Jahr 2022 neu ausgebaute, Wohnung in Tennenbronn: 
Ihre neue Kapitalanlage wartet!
Lage