Top-Gelegenheit für Gewerbetreibende! Wohnen und Arbeiten unter einem Dach!
Objektart
Adresse
Objektdaten
Informationen
Ausstattung
Details
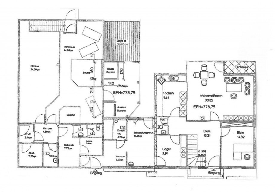
In schöner Randlage des Gewerbegebiets in Hardt befindet sich dieses außergewöhnliche Anwesen. Es handelt sich um ein sehr ansprechendes Wohnhaus (Betriebsleiterwohnung) und einen gewerblichen Bereich, in welchem ein umfangreiches Saunaparadies verwirklicht wurde. Dieser verfügt über einen eigenen Außen-/Besucherzugang und hat intern auch einen direkten Zugang in den Wohnbereich.
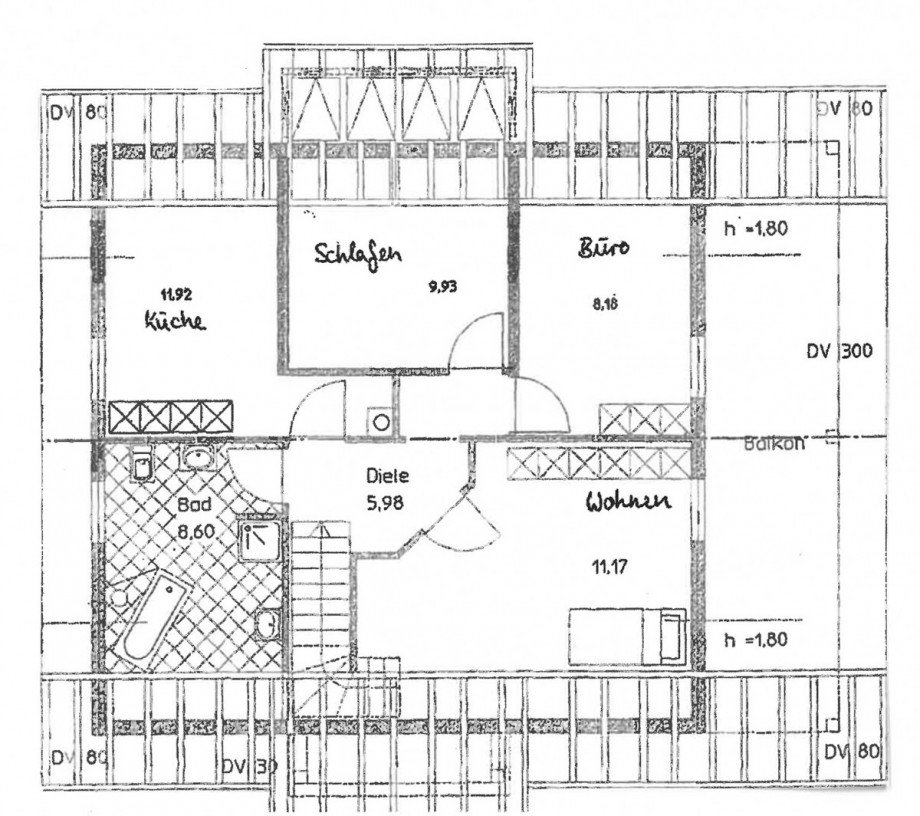
Ein wirklich sehr großzügiges Wohn- und Geschäftshaus, welches 1999 erbaut und danach immer wieder erweitert, umgebaut und modernisiert wurde. Auf insgesamt ca. 145 m² Wohnfläche, verteilt über zwei Etagen, befinden sich hier 6 Zimmer, 1 Küche und zwei Bäder.
Im EG befindet sich ein Büro, ein großzügiger Wohn-Essbereich mit direktem Zugang auf die Gartenterrasse und den Garten, eine Küche, sowie ein neu eingebautes Gäste-WC. Über die Diele führt eine Treppe in das Obergeschoss. Hier befinden sich drei weitere, schön geschnittene Räume, wovon zwei Zimmer einen Balkon haben und ein großzügiges Bad, mit Badewanne, Dusche und WC.
Der wunderschön angelegte Garten verfügt über einen festen Außenpool und eine große Grillstelle am Randbereich des Grundstücks. Das 2017 aufgebaute Gartenhaus bietet viel Platz und Stauraum für Garten- und Freizeitgeräte. Das Grundstück hat eine Fläche von ca. 1400 m².
Eine Unterkellerung ist nicht vorhanden.
Ihr Fahrzeug kann bequem direkt in der Zufahrt parken.
Da es sich um ein Objekt im Gewerbegebiet handelt, möchten wir bereits an dieser Stelle darauf hinweisen, dass die Nutzung der Wohnräume nur möglich ist, wenn gleichzeitig auch im gewerblichen Teil eine angemeldete, gewerbliche Nutzung betrieben wird.
Im Verbindungstrakt zwischen Wohnhaus und Saunabereich, wurde 2019 ein Kosmetikstudio realisiert. Diese Räume verfügen über eine eigenständige Klimaanlange sowie ein kleines Bad mit Dusche und WC. Über eine separate Zugangstür gelangt man von dem Gewerbebereich auch in den Wohnbereich.
Das Produktionsgebäude verfügt über ca. 240 m2 Nutzfläche.
Der Sauna und Spa Bereich wurde 2018 fertiggestellt und lässt keine Wünsche offen.
Haben wir Ihr Interesse geweckt?
Wir freuen uns auf Ihren Kontakt.
-6 Zimmer
-1 Küche, eine weitere Küche ist im Obergeschoss anschlusstechnisch vorgesehen
-2 Bäder
-Gartenterrasse
-Garten
-Außenpool
-Grillstelle
-Gartenhaus
-Gewerbeeinheit aktuell als Sauna genutzt
Die eigenständige Gemeinde Hardt liegt auf einer freien Hochfläche am Ostrand des mittleren Schwarzwalds in Baden-Württemberg. An die Gemeinde Hardt grenzen die Stadt Schramberg, die Gemeinde Eschbronn und die Gemeinde Königsfeld im Schwarzwald-Baar-Kreis. Auf dem Hardt liegen die Einzelhandelsgeschäfte „gleich um die Ecke“. Egal ob Backwaren, andere Lebensmittel, Getränke oder Haushaltswaren. In den Hardter Geschäften bekommen Sie, was Sie brauchen. Für die Jüngsten gibt es eine Kindertagesstätte sowie eine Grundschule. Weiterführende Schulen befinden sich in den angrenzenden Städten und Gemeinden. (Quelle: www.hardt-online.de)
Energieausweis: Verbrauchsausweis gültig von: 21.09.2022
Endenergieverbrauch Wärme: 59.5 kWh/(m²a) inklusive Warmwasser
Wesentliche Energieträger Heizung: Befeuerung Gas
Energieeffizienzklasse: B
Baujahr: 1999
Ansprechpartner
Telefax: 07422-94967-60
albert.feix@spittel-bau.de
Mo. - Fr. 8.00 Uhr - 12.00 Uhr / 14.00 Uhr - 17.00 Uhr
Energieausweis (Verbrauchsausweis)
59,50 kWh / (m²*a) Energieverbrauchskennwert
59,50 kWh / (m²*a) Energieverbrauchskennwert
59,50 kWh / (m²*a) Energieverbrauchskennwert
Weitere Informationen
| Wesentlicher Energieträger | Gas |
| Energieausweis Ausstelldatum | 2022-09-21 |
| Energieausweis gültig bis | 20.09.2032 |
| Energieausweis Jahrgang | ab dem 1.5.2014 |
| Energieverbrauch für Warmwasser | enthalten |
| Energieausweis Wärmewert | 59.5 kWh / (m²*a) |
| Energieausweis Werteklasse | B |
| Energieausweis Baujahr | 1999 |
| Energieausweis Gebäudeart | Gewerbe |
| Befeuerung | Gas |
