Objektart
Adresse
Objektdaten
Informationen
Details
Dieses ansprechende Wohn- und Geschäftshaus wurde über die Jahre hinweg immer liebevoll von dem Eigentümer gepflegt und befindet sich im Zentrum von Schramberg.
Alle 3 Einheiten sind vermietet (2 Wohnungen und 1 Gewerbeeinheit).
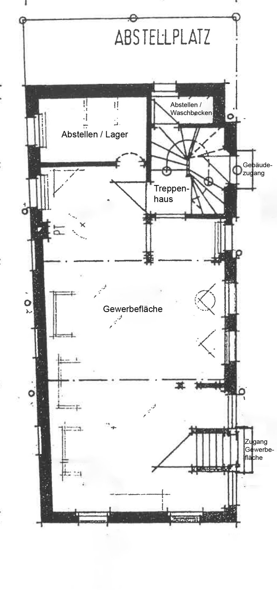
Die Gewerbeeinheit mit eigenem Eingang, wird derzeit als Sonnenstudio betrieben. Die Einheit verfügt neben einem großen und lichtdurchfluteten Gewerberaum mit viel Fenster- und Werbefläche, über einen kleinen Lagerbereich, einem separaten WC im Treppenhaus sowie über einen weiteren kleinen Abstellraum mit Waschbecken im Treppenhaus. Die Nutzfläche der Einheit beläuft sich auf rund 63m². Ausreichend öffentliche Parkplätze gibt es direkt vor dem Gebäude.
Die beiden Wohneinheiten im 1. OG und im DG sind gut vermietet und zeugen von gehobenem Standard. Die 3 Zimmer Wohnung im 1. OG, verfügt über ca. 63m² Wohnfläche. Neben einer schönen Einbauküche, gibt es hier auch ein modernes Tageslichtbad und tolle Extras wie ein modernes, verglastes Einbauregal. Zusätzlich hat diese Einheit für Gäste eine separate Toilette außerhalb der Wohnung. Das 1,5 Zimmer Appartement im DG, verfügt über ca. 60m² Wohnfläche. Neben einer schönen, modernen Einbauküche, verfügt diese Einheit noch über ein Tageslichtbad mit gläserner Gutenmorgendusche und großer Badewanne. Von dieser Einheit gelangt man auch auf den Dachboden, welcher noch zusätzlichen Stauraum für diese Wohnung bietet.
Zu den beiden Wohnungen gehören im Untergeschoss noch jeweils ein eigener Tageslicht-Kellerraum. Außerdem finden Sie im Untergeschoss noch einen gemeinschaftlichen Kellerraum. Sowie ein großer Tageslichtraum welcher an die Gewerbeeinheit vermietet ist.
Alle 3 Einheiten haben jeweils eine eigene Gasetagenheizung sowie Wasser- / Strom- und Gaszähler.
Der Eigentümer hat sich immer liebevoll um das Objekt gekümmert, so sind etwa in den letzten 10 bis 12 Jahren das Dach, die Wasser und Abwasserleitungen, die Elektrik und die Gasleitungen erneuert sowie die Fassade gereinigt, gestrichen und neu versiegelt worden. Daher haben Sie jetzt die Chance auf ein tolles Objekt das keinen Unterhaltsstau aufweist!
UG:
- Kellerraum WHG 1.OG
- Kellerraum WHG DG
- Gemeinschaftlicher Keller
- Großer Tageslichtraum z.B. Nutzung als Lager (zuletzt an die Gewerbeeinheit vermietet)
EG / Hochparterre:
- Gewerbeeinheit mit großzügiger Ladenfläche und separatem Eingang, zusätzlichem Zugang über das Treppenhaus, abgetrennter kleiner Lagerbereich, separates WC im Treppenhaus, kleiner Raum mit Waschbecken im Treppenhaus.
1. OG:
- 3 Zimmer Wohnung mit Tageslichtbad, Küche mit EBK, Diele, sep. Gäste-WC außerhalb der Wohnung
DG:
- 1,5 Zimmer Appartement mit Tageslichtbad, Küche mit EBK, Diele, Zugang zum Dachboden mit weiterem Stauraum
Rund 21.000 Einwohner wohnen in der Schramberger Talstadt bzw. im Stadtteil Tennenbronn und auf der umliegenden Hochebene in den Stadtteilen Sulgen, Waldmössingen, Heiligenbronn und Schönbronn. Ursprünglich Uhren- und Industriestadt, hat sich Schramberg heute zu einer modernen Stadt entwickelt, die Kultur, Bildung, Sport, Freizeit, Natur, Einkaufsmöglichkeiten und vieles mehr für seine Bürger bietet. Schramberg wird mit einem vielfältigen Angebot seiner Funktion als Mittelzentrum für die Umlandgemeinden mehr als gerecht. Die Immobilie liegt in der Schramberger Talstadt, in 1A Zentrumslage.
Ansprechpartner
Telefax: 07422-9496760
id@spittel-bau.de
Mo. - Fr. 8.00 Uhr - 12.00 Uhr / 14.00 Uhr - 17.00 Uhr
