Sehr beliebte Wohnlage!Familien-Doppelhaushälfte in Schramberg auf dem Schlangenbühl.
Objektart
Adresse
Objektdaten
Informationen
Ausstattung
Details
Herzlich willkommen in Ihrem zukünftigen Traumhaus in ruhiger Aussichtslage! Dieses schön geschnittene, dreigeschossige Einfamilienhaus aus dem Jahr 1994 bietet Ihnen auf einer großzügigen Wohnfläche von 165 m² und einem liebevoll angelegten Grundstück von 351 m² viel Raum für Ihre individuellen Wohnideen. Mit insgesamt 5 geräumigen Zimmern ist dieses Haus ideal für Familien, Paare oder alle, die einfach Platz zum Entfalten suchen.
Beim Betreten des Hauses empfängt Sie ein einladender Flur, der Sie zu den verschiedenen Wohnbereichen führt.
Im Erdgeschoss befindet sich Ihr neuer familiärer Lebensmittelpunkt. Die großzügige Wohn-Essküche bietet ausreichend Platz für gesellige Kochabende mit Freunden und Familie. Der Raum lädt zum Verweilen ein. Von hier gelangen Sie auf die Gartenterrasse mit tollem Blick über Schramberg. Hier können Sie entspannte Stunden im Freien verbringen, während die Kinder im Garten spielen oder Sie einfach die Ruhe genießen. Praktisch ist auch der direkt angeschlossene Hauswirtschaftsraum.
Gegenüber der Küche erwartet Sie das große, lichtdurchflutete Wohnzimmer. Von hier kommen Sie direkt auf den Freisitz vor dem Wohnzimmer. Für gemütliche Abendstunden in der kalten Jahreszeit sorgt ein Pelletofen für wohlige Gemütlichkeit.
Ein separates Gäste-WC auf der Etage sorgt für zusätzlichen Komfort. Die Etage wird durch eine Fußbodenheizung mit Wärme versorgt.
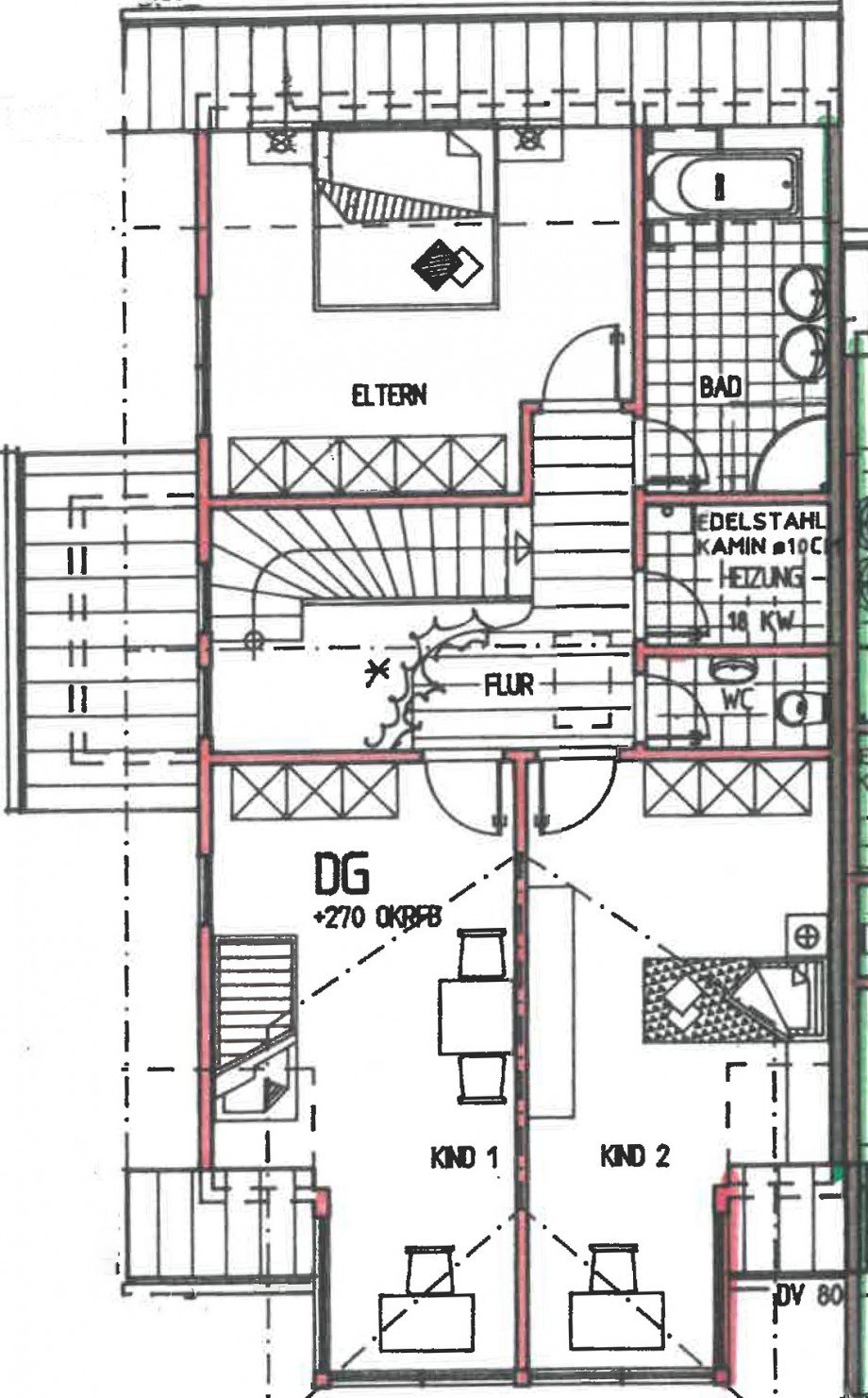
Im Ober- und Dachgeschoss befinden sich mehrere Zimmer, die Ihnen die Möglichkeit bieten, individuelle Rückzugsorte zu schaffen - sei es ein Schlafzimmer, ein Arbeitszimmer, ein Gästezimmer oder ein Spielzimmer für die Kleinen.
Ein weiteres Highlight ist das Bad mit Wanne, Dusche und Doppelwaschbecken. Zusätzlichen Komfort bietet hier eine Fußbodenheizung.
Das Dachgeschoß wurde zu einem großen Hobbyraum ausgebaut. In einem abgetrennten Bereich befindet sich hier auch die Gastherme.
Eine Garage rundet das Angebot ab und bietet zusätzlichen Platz für Ihr Auto oder Ihre Fahrräder.
Das Haus wartet darauf, von Ihnen mit Leben gefüllt zu werden. Nutzen Sie die Chance, dieses großzügige und charmante zu Hause nach Ihren eigenen Vorstellungen zu gestalten und schaffen Sie sich eine Oase der Behaglichkeit in einer ruhigen und sehr beliebten Lage. Lassen Sie sich von den Möglichkeiten inspirieren und vereinbaren Sie noch heute einen Besichtigungstermin!
-offener Küchen/ Essbereich
-4 Zimmer
-1 Badezimmer
-Küche
-2 sep. WC
-2 Terrassen
-Garage
Rund 21.000 Einwohner wohnen in der Schramberger Talstadt bzw. im Stadtteil Tennenbronn und auf der umliegenden Hochebene in den Stadtteilen Sulgen, Waldmössingen, Heiligenbronn und Schönbronn. Ursprünglich Uhren- und Industriestadt, hat sich Schramberg heute zu einer modernen Stadt entwickelt, die Kultur, Bildung, Sport, Freizeit, Natur, Einkaufsmöglichkeiten und vieles mehr für seine Bürger bietet. Schramberg wird mit einem vielfältigen Angebot seiner Funktion als Mittelzentrum für die Umlandgemeinden mehr als gerecht. Die Immobilie liegt im Schlangenbühl, einem Wohngebiet zwischen Schramberg und Hardt.
Energieausweis: Verbrauchsausweis gültig von: 17.08.2025
Endenergieverbrauch Wärme: 141.2 kWh/(m²a) inklusive Warmwasser
Wesentliche Energieträger Heizung: Befeuerung Flüssiggas
Energieeffizienzklasse: E
Baujahr: 1994
Beim Kauf der nachfolgend angebotenen Immobilie beträgt der monatliche Aufwand 1.845,07 EUR
bei einem Kaufpreis von 449.000,00 EUR
+ Notar u. Gerichtskosten 6.735,00 EUR
+ Grunderwerbsteuer 22.450,00 EUR
+ Maklerprovision 16.029,30 EUR
+ sonstige Kosten 0,00 EUR
Gesamtkosten 494.214,30 EUR
- 20,00% Eigenkapital 98.842,86 EUR
Fremdmittelbedarf 395.371,44 EUR
bei einem Zinssatz von 3,6% (effektiver Jahreszins gemäß PangV 3,66% ) und 2,00% Tilgung und bei einer Zinsfestschreibung auf 10 Jahre.
Bei dieser Berechnung sind Kosten, die eventuell für die Beschaffung der Finanzierung anfallen, nicht berücksichtigt. Ebenso sind eventuelle staatliche Zuwendungen oder steuerliche Vergünstigungen nicht in diesem Vorschlag einbezogen.
Stand des Zinses: 08.10.2025
Ansprechpartner
Telefax: 07422-94967-60
albert.feix@spittel-bau.de
Mo. - Fr. 8.00 Uhr - 12.00 Uhr / 14.00 Uhr - 17.00 Uhr
Energieausweis (Verbrauchsausweis)
141,20 kWh / (m²*a) Energieverbrauchskennwert
141,20 kWh / (m²*a) Energieverbrauchskennwert
141,20 kWh / (m²*a) Energieverbrauchskennwert
Weitere Informationen
| Wesentlicher Energieträger | Flüssiggas |
| Energieausweis Ausstelldatum | 2025-08-17 |
| Energieausweis gültig bis | 17.08.2035 |
| Energieausweis Jahrgang | ab dem 1.5.2014 |
| Energieverbrauch für Warmwasser | enthalten |
| Energieausweis Werteklasse | E |
| Energieausweis Baujahr | 1994 |
| Energieausweis Gebäudeart | Wohngebäude |
| Befeuerung | Flüssiggas |
