Objektart
Adresse
Objektdaten
Informationen
Ausstattung
Details
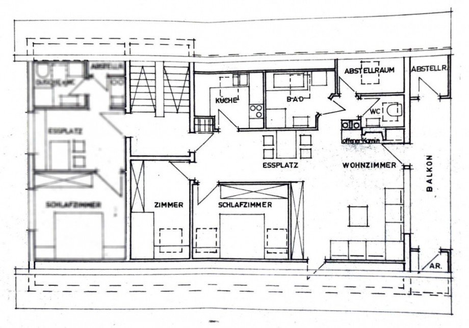
Diese ansprechende, nach Süden ausgerichtete, 3-Zimmer-Wohnung befindet sich in einem gepflegten Mehrfamilienhaus, das im Jahr 1979 erbaut wurde. Mit einer großzügigen Wohnfläche von 73 m² bietet sie ausreichend Platz für Singles oder Paare, die ein helles und einladendes Zuhause suchen. Die Wohnung ist ideal aufgeteilt und überzeugt durch eine durchdachte Raumgestaltung. Wohnanlage ist gepflegt und liegt am Waldrand. Das Haus wurde von der Eigentümerschaft gut gepflegt. So wurden im Jahr 2023 die Fenster erneuert und 2024 die Zentralheizung.
Die lichtdurchfluteten Zimmer schaffen eine angenehme Wohnatmosphäre und ermöglichen eine optimale Nutzung des vorhandenen Platzes. Der offene Wohn- und Essbereich ist der zentrale Mittelpunkt der Wohnung und bietet direkten Zugang zum großen Balkon, der zum Entspannen und Verweilen einlädt. Hier können Sie die frische Luft und die Aussicht auf die schöne Schwarzwald-Umgebung genießen.
Ihr neues Schlafzimmer mit Zugang zur Loggia, eine weiteres Zimmer, nutzbar als Kinderzimmer oder Büro, eine Küche, das Badezimmer und ein Kellerraum runden das Angebot ab.
Die Wohnung befindet sich im Dachgeschoss eines ruhigen Wohnhauses, das insgesamt drei Geschosse umfasst. Dies sorgt für eine angenehme Nachbarschaft und eine ruhige Wohnlage. Ein Stellplatz und Garagenplatz gehört ebenfalls zur Wohnung und bietet zusätzlichen Komfort.
Die Wohnung eignet sich sehr gut zum Selbstbezug oder auch als Ferienimmobilie, da es nur 5 Minuten bis zum Premiumwanderweg, dem Freibad oder im Winter zu den Loipen sind.
Mit dieser Immobilie haben Sie die Möglichkeit, im Eigentum zu wohnen, statt Miete zu bezahlen. Mit dem „Baustein Immobilie“ können Sie sich eine langfristige und wertsteigernde Altersvorsorge aufbauen.
Und das ohne weitere Sanierungsmaßnahmen, da die Immobilie, wie bereits erwähnt über eine neue Heizung und neue Fenster verfügt.
Einziehen und wohlfühlen!
Diese Wohnung eignet sich auch besonders für Familien mit größeren Kinder. So könnte die Wohnung mit der auf dem selben Stockwert liegenden 1– Zimmer-Wohnung, Objekt Nr. 3010, zusammen erworben werden.
Dann würden Ihnen auf einer Etage
5 Zimmer und 99m² Wohnfläche zur Verfügung stehen.
-Wohnzimmer
-Küche
-Schlafzimmer
-Kinderzimmer/ Büro
-Diele
-Dusche, Badewanne, WC
-Balkon und Loggia
-Keller
-PKW– Stellplatz und Garagenplatz
Der Luftkurort Tennenbronn liegt mit seinen 3500 Einwohnern auf einer Höhe von 460 - 930 Meter über dem Meeresspiegel. Tennenbronn hat sich die Strukturen eines idyllischen Schwarzwalddorfes erhalten, in welchem sich die Menschen in Vereinen engagieren und eine lebendige Gemeinschaft, Gastfreundschaft, Tradition und Brauchtum intensiv gepflegt werden. Das kulturelle Leben wird bestimmt durch die zahlreichen Veranstaltungen der über vierzig aktiven Vereine. Sei es an der Fasnet, wenn die Narren durch den Ort ziehen oder bei einem der legendären Waldfeste, bei denen alte Bräuche und Handwerkstechniken vorgeführt werden. Die Region um Tennenbronn ist auch ein ideales Revier für Wanderungen, Nordic-Walking und Mountainbike-Ausflüge. Entspannen Sie danach im 2021 wieder eröffneten Freibad. Im Winter werden Loipen von 3 bis 19 Kilometern Länge gespurt, ein Rodelhang bringt Spaß für Groß und Klein. Diese helle, nach Süden ausgerichtete Wohnung liegt in schöner, sonniger, ruhiger und sehr idyllischer Lage von Tennenbronn. Genießen Sie den Blick in die Natur und kurze Wege zu den oben beschriebenen Freizeitaktivitäten
Wohnen Sie da, wo andere Urlaub machen!
Energieausweis: Bedarfsausweis gültig von: 25.11.2025
Endenergiebedarf Wärme: 63.8 kWh/(m²a)
Wesentliche Energieträger Heizung: Befeuerung Strom
Energieeffizienzklasse: B
Baujahr: 1979
Beim Kauf der nachfolgend angebotenen Immobilie
beträgt der monatliche Aufwand 678,76 EUR
bei einem Kaufpreis von 185.000,00 EUR
+ Notar u. Gerichtskosten 2.775,00 EUR
+ Grunderwerbsteuer 9.250,00 EUR
+ Maklerprovision 6.604,50 EUR
+ sonstige Kosten 0,00 EUR
Gesamtkosten 203.629,50 EUR
- 20,00% Eigenkapital 40.725,90 EUR
Fremdmittelbedarf 162.903,60 EUR
bei einem Zinssatz von 3,5% (effektiver Jahreszins gemäß PangV 3,56% ) und 1,5% Tilgung und bei einer Zinsfestschreibung auf 10 Jahre.
Bei dieser Berechnung sind Kosten, die eventuell für die Beschaffung der Finanzierung anfallen, nicht berücksichtigt. Ebenso sind eventuelle staatliche Zuwendungen oder steuerliche Vergünstigungen nicht in diesem Vorschlag einbezogen.
Stand des Zinses: 23.10.2025
Ansprechpartner
Telefax: 07422-94967-60
albert.feix@spittel-bau.de
Mo. - Fr. 8.00 Uhr - 12.00 Uhr / 14.00 Uhr - 17.00 Uhr
Energieausweis (Bedarfsausweis)
63,80 kWh / (m²*a) Endenergiebedarf
63,80 kWh / (m²*a) Endenergiebedarf
63,80 kWh / (m²*a) Endenergiebedarf
Weitere Informationen
| Wesentlicher Energieträger | Strom |
| Energieausweis Ausstelldatum | 2025-11-25 |
| Energieausweis gültig bis | 25.11.2035 |
| Energieausweis Jahrgang | ab dem 1.5.2014 |
| Energieausweis Werteklasse | B |
| Energieausweis Baujahr | 1979 |
| Energieausweis Gebäudeart | Wohngebäude |
| Befeuerung | Elektro |
