Objektart
Adresse
Objektdaten
Informationen
Details
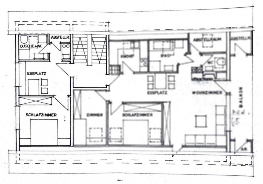
Diese ansprechende 2-Zimmer-Wohnung befindet sich in einem gepflegten Mehrfamilienhaus, das im Jahr 1979 erbaut wurde. Mit einer Wohnfläche von 26 m² eignet sie sich für Singles oder als Pendlerwohnung. Die Wohnanlage ist gepflegt und liegt am Waldrand. Das Haus wurde von der Eigentümerschaft gut gepflegt. So wurden im Jahr 2023 die Fenster erneuert und 2024 die Zentralheizung.
Die lichtdurchfluteten Zimmer schaffen eine angenehme Wohnatmosphäre und ermöglichen eine optimale Nutzung des vorhandenen Platzes.
Die Wohnung verfügt über ein gemütliches Schlafzimmer, einen Essplatz, ein Badezimmer mit Badewanne und WC und einer Küche mit vorhandenen Anschlüssen.
Sie befindet sich im Dachgeschoss eines ruhigen Wohnhauses, das insgesamt drei Geschosse umfasst. Dies sorgt für eine angenehme Nachbarschaft und eine ruhige Wohnlage. Ein Stellplatz gehört ebenfalls zur Wohnung und bietet zusätzlichen Komfort.
Die Wohnung eignet sich sehr gut zum Selbstbezug oder auch als Ferienimmobilie, da es nur 5 Minuten bis zum Premiumwanderweg, dem Freibad oder im Winter zu den Loipen sind.
Mit dieser Immobilie haben Sie die Möglichkeit, im Eigentum zu wohnen, statt Miete zu bezahlen. Mit dem „Baustein Immobilie“ können Sie sich eine langfristige und wertsteigernde Altersvorsorge aufbauen.
Und das ohne weitere Sanierungsmaßnahmen, da die Immobilie, wie bereits erwähnt über eine neue Heizung und neue Fenster verfügt.
Einziehen und wohlfühlen!
Diese Wohnung könnte zusammen mit der auf dem selben Stock liegenden 3- Zimmer-Wohnung, Objekt Nr. 3006 erworben werden.
Dann würden Ihnen auf einer Etage
5 Zimmer und 99m² Wohnfläche zur Verfügung stehen.
Dies bietet Ihnen ausreichend Platz für die Familie.
-Essplatz
-Schlafzimmer
-Diele
-Badewanne, WC
-Keller
-PKW– Stellplatz
Der Luftkurort Tennenbronn liegt mit seinen 3500 Einwohnern auf einer Höhe von 460 - 930 Meter über dem Meeresspiegel. Tennenbronn hat sich die Strukturen eines idyllischen Schwarzwalddorfes erhalten, in welchem sich die Menschen in Vereinen engagieren und eine lebendige Gemeinschaft, Gastfreundschaft, Tradition und Brauchtum intensiv gepflegt werden. Das kulturelle Leben wird bestimmt durch die zahlreichen Veranstaltungen der über vierzig aktiven Vereine. Sei es an der Fasnet, wenn die Narren durch den Ort ziehen oder bei einem der legendären Waldfeste, bei denen alte Bräuche und Handwerkstechniken vorgeführt werden. Die Region um Tennenbronn ist auch ein ideales Revier für Wanderungen, Nordic-Walking und Mountainbike-Ausflüge. Entspannen Sie danach im 2021 wieder eröffneten Freibad. Im Winter werden Loipen von 3 bis 19 Kilometern Länge gespurt, ein Rodelhang bringt Spaß für Groß und Klein.Diese helle, nach Süden ausgerichtete Wohnung liegt in schöner, sonniger, ruhiger und sehr idyllischer Lage von Tennenbronn. Genießen Sie den Blick in die Natur und kurze Wege zu den oben beschriebenen Freizeitaktivitäten.
Wohnen Sie da, wo andere Urlaub machen!
Energieausweis: Bedarfsausweis gültig von: 25.11.2025
Endenergiebedarf Wärme: 63.8 kWh/(m²a)
Wesentliche Energieträger Heizung: Befeuerung Strom
Energieeffizienzklasse: B
Baujahr: 1979
Beim Kauf der nachfolgend angebotenen Immobilie beträgt
der monatliche Aufwand 282,12 EUR
bei einem Kaufpreis von 75.000,00 EUR
+ Notar u. Gerichtskosten 1.125,00 EUR
+ Grunderwerbsteuer 3.750,00 EUR
+ Maklerprovision 4.760,00 EUR
+ sonstige Kosten 0,00 EUR
Gesamtkosten 84.635,00 EUR
- 20,00% Eigenkapital 16.927,00 EUR
Fremdmittelbedarf 67.708,00EUR
bei einem Zinssatz von 3,5% (effektiver Jahreszins gemäß PangV 3,56% ) und 1,5% Tilgung und bei einer Zinsfestschreibung auf 10 Jahre.
Bei dieser Berechnung sind Kosten, die eventuell für die Beschaffung der Finanzierung anfallen, nicht berücksichtigt. Ebenso sind eventuelle staatliche Zuwendungen oder steuerliche Vergünstigungen nicht in diesem Vorschlag einbezogen.
Stand des Zinses: 23.10.2025
Ansprechpartner
Telefax: 07422-94967-60
albert.feix@spittel-bau.de
Mo. - Fr. 8.00 Uhr - 12.00 Uhr / 14.00 Uhr - 17.00 Uhr
Energieausweis (Bedarfsausweis)
63,80 kWh / (m²*a) Endenergiebedarf
63,80 kWh / (m²*a) Endenergiebedarf
63,80 kWh / (m²*a) Endenergiebedarf
Weitere Informationen
| Wesentlicher Energieträger | Strom |
| Energieausweis Ausstelldatum | 2025-11-22 |
| Energieausweis gültig bis | 22.11.2035 |
| Energieausweis Jahrgang | ab dem 1.5.2014 |
| Energieausweis Werteklasse | B |
| Energieausweis Baujahr | 1979 |
| Energieausweis Gebäudeart | Wohngebäude |
| Befeuerung | Elektro |
